+33 (0) 6 16 25 44 01 - +33 (0) 6 50 57 96 95
info@fy-realestate.mc
shopping-bag Shopping Bag (0)
Items : 0
Subtotal : £0.00
View Cart Check Out

Rent Monte Carlo Sun – 4-room apartment with sea views

Caractéristiques
Localisation
Saint Roman
Total Area
200 sqm
Living area
150 sqm
Terrasse Area
50 sqm
Number of rooms
4
Number of Bedrooms
3
Number of Bathrooms
2
Parking
2
Cellar
1
Description

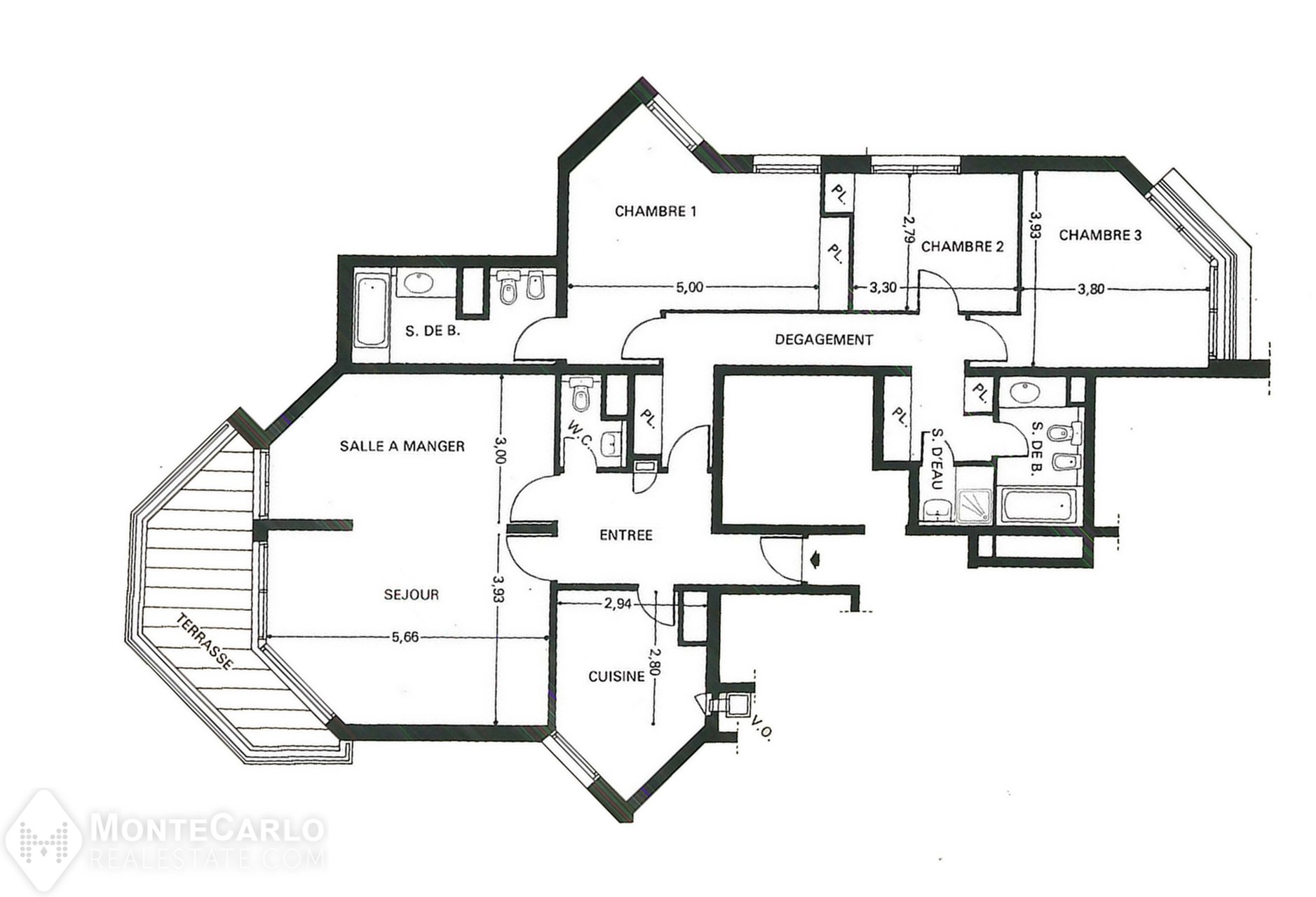
Saint Roman, in a high-end building, the Monte Carlo Sun, close to the beaches, the Monte Carlo Beach, and the Monte Carlo Country Club, this building offers 24-hour concierge and security service, visitor parking and an outdoor swimming pool. This apartment is composed as follows: entrance with cupboards, double living room overlooking a large terrace, sea views, large fitted and furnished kitchen, master bedroom in the front with its bathroom, a second bedroom with its bathroom, a third bedroom as well as a shower room. Two cellars and double parking space. The apartment is available immediately.

 

LA ROUSSE – SAINT ROMAN

The northernmost district of the Principality, it is located in the North-East, on the border with Roquebrune-Cap-Martin and Beausoleil.

A residential area par excellence, it is undergoing a transformation thanks to many large-scale projects such as « Le MoNa Résidence » or « Le Testimonio II », bringing their share of dynamism and new businesses. Host of the now famous Tour Odéon, the tallest building in Monaco, the La Rousse district offers an eclectic mix of Belle Epoque, Art Deco and Modernist edifices

 

Prix : 18'000.--€ per month