+33 (0) 6 16 25 44 01 - +33 (0) 6 50 57 96 95
info@fy-realestate.mc
shopping-bag Shopping Bag (0)
Items : 0
Subtotal : £0.00
View Cart Check Out

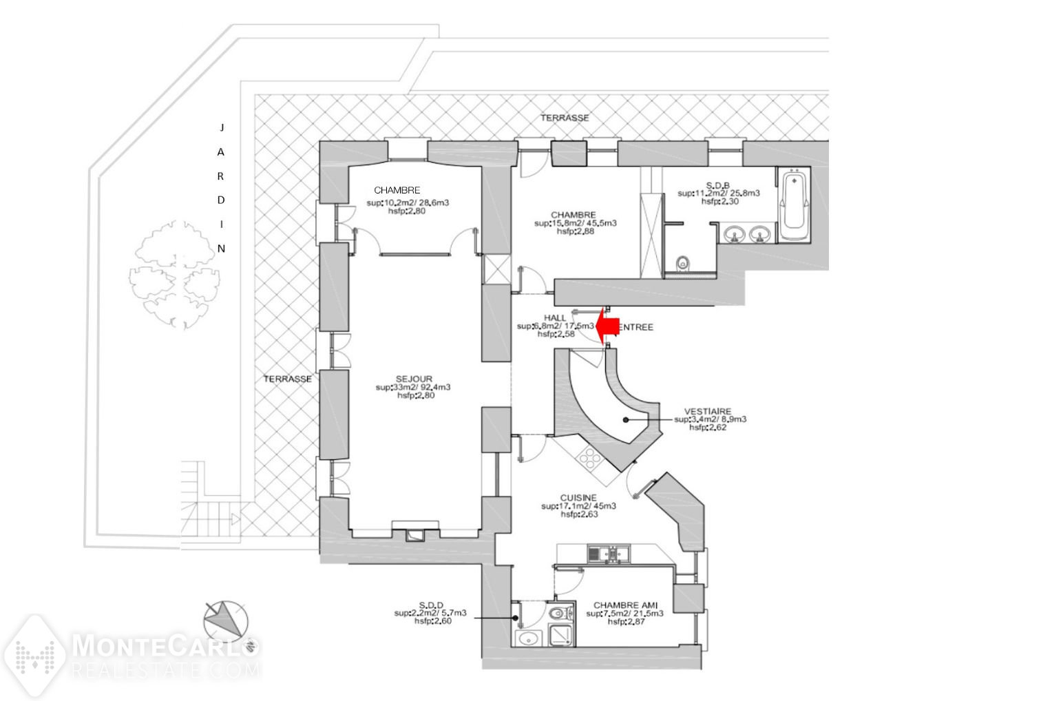
Vente La radieuse

Caractéristiques
Localisation
La Rousse
Immeuble
La Radieuse
Superficie Total
159 m2
Superficie Habitable
113 m2
Nombres de Pièces
3
Nombre de Chambres
2
Description

Sous loi 887.

Entrée, double séjour avec accès terrasse et jardin, grande cuisine équipée, sortie de service, dressing, une chambre de maître avec salle de bains attenante, dressing, salle de  douche, un bureau, 1 cave au même niveau.

Joli jardin en contrebas en usage privatif, avec abri pour meubles d’extérieur.

Bail résilié au 1/11/2019 Loyer mensuel : 8339 € + ch

Prix : 4'500'000.--€