+33 (0) 6 16 25 44 01 - +33 (0) 6 50 57 96 95
info@fy-realestate.mc
shopping-bag Shopping Bag (0)
Items : 0
Subtotal : £0.00
View Cart Check Out

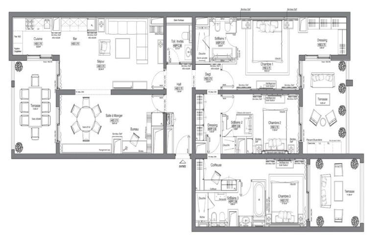
Vente GRAND LARGE

Caractéristiques
Localisation
Fontvieille
Immeuble
Grand Large
Superficie Total
180 m2
Superficie Habitable
140 m2
Nombres de Pièces
4
Nombre de Chambres
3
Parking
2
Cave
1
Description

Appartement traversant entièrement rénové de 140m2 + 40m2 de terrasse.

Il se compose d’un hall entrée avec rangement, d’un salon salle à manger, d’une cuisine, d’un WC invité, d’une chambre de maître avec salle de bain et dressing, deux chambres, une salle de bain et une salle de douche.

Deux parkings + une cave

 

Prix : 9'400'000.--€