+33 (0) 6 16 25 44 01 - +33 (0) 6 50 57 96 95
info@fy-realestate.mc
shopping-bag Shopping Bag (0)
Items : 0
Subtotal : £0.00
View Cart Check Out

Fond de Commerce

Caractéristiques
Localisation
Comdamine
Adresse
Allée Lazare Sauvaigo
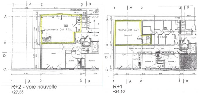
Superficie Local
74 m2
Superficie Terrasse
45 m2
Loyer Mensuel Actuel Local
2'650.--€
Loyer Mensuel Actuel Terrasse
350.--€
Description

En plein cœur du quartier de la condamine, dans une rue piétonne à fort passage de clientèle.
Le local récemment rénové est composé : en rez-de-chaussée d’une grande pièce principale avec belles vitrines donnant sur la rue piétonne, d’un water-closet, d’une cuisine aménagée avec frigo, congélateur, banque réfrigérée ; en sous-sol, d’une grande réserve avec point d’eau.

 

Prix : 650'000.--€