+33 (0) 6 16 25 44 01 - +33 (0) 6 50 57 96 95
info@fy-realestate.mc
shopping-bag Shopping Bag (0)
Items : 0
Subtotal : £0.00
View Cart Check Out

Cession Droit au Bail

Caractéristiques
Localisation
Condamine
Adresse
19 Rue Princesse Caroline
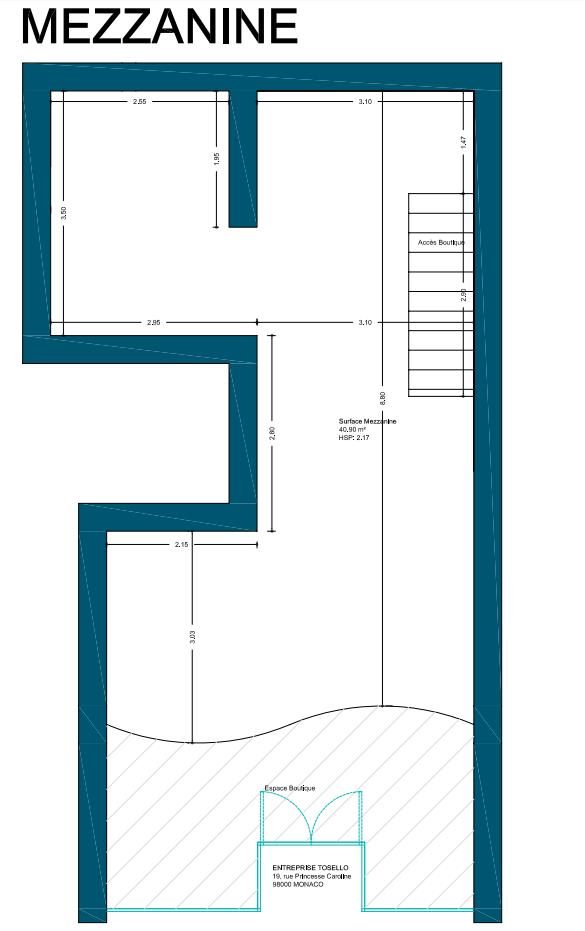
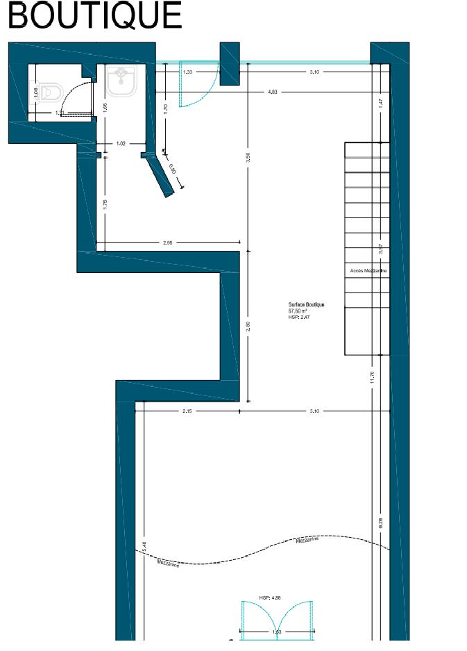
Superficie Total
120 m2
Loyer Mensuel
2'500.--€
Description

Situé dans le quartier de la condamine, au cœur de zone piétonne, sur la rue Princesse Caroline et a proximité immédiate du port de Monaco.

Ce local bénéficie d’une mezzanine et d’un belle espace de vitrine.

 

Prix : 1'550'000.--€