+33 (0) 6 16 25 44 01 - +33 (0) 6 50 57 96 95
info@fy-realestate.mc
Shopping Bag (
0
)
Items :
0
Subtotal :
£
0.00
View Cart
Check Out
Open Menu
Accueil
Monaco
A l’Etranger
Prestations
Contact
Accueil
Monaco
A l’Etranger
Prestations
Contact
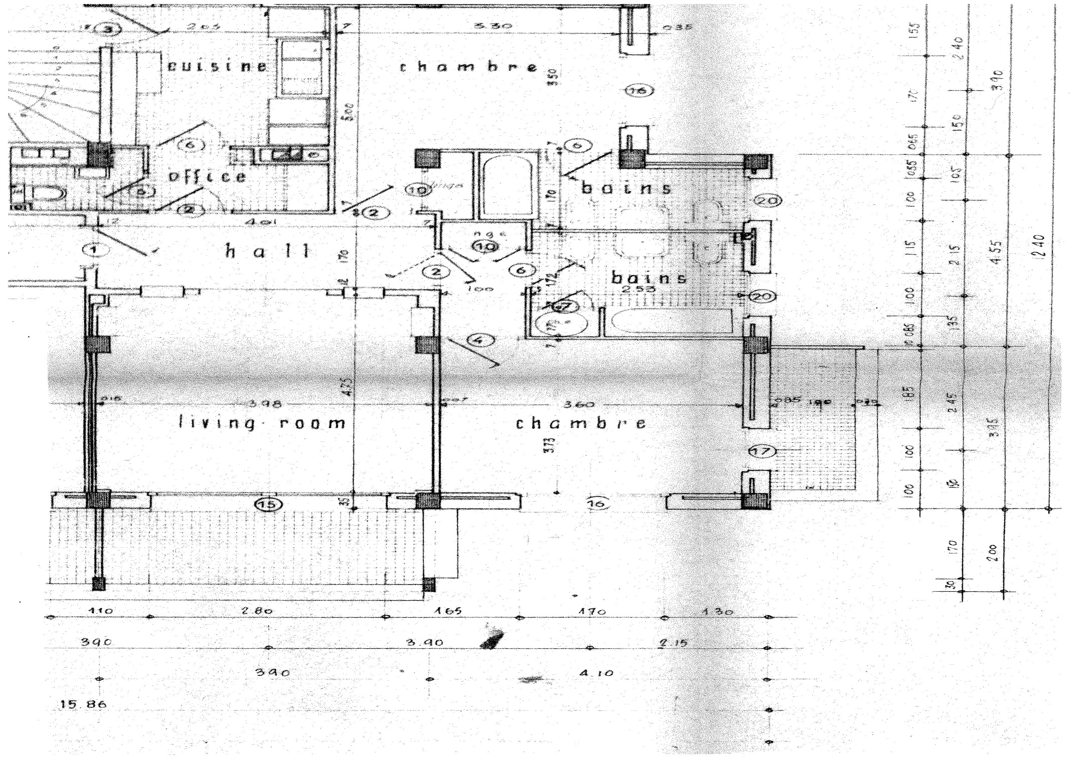
Vente Le Calypso
Caractéristiques
Localisation
Larousse
Immeuble
Le Calypso
Adresse
34 Boulevard de D'Italie
Superficie Total
110 m2
Superficie habitable
95 m2
Superficie terrasse
15 m2
Nombres de Pièces
3
Nombres de Chambres
2
Vue
Ville
Description
Situé dans une résidence avec concierge, bel appartement à rénover.
Libre de loi.
Usage mixte.
Prix : 3'600'000.--€